New east-side office development offers 10 free-standing buildings for sale
Sept. 14, 2022
This paid Site Spotlight is sponsored by Ryan Tysdal, Van Buskirk Cos.
Open your next office along high-profile East 57th Street or find your next investment property among 10 free-standing office buildings now on the market.
Developed by Empire Cos. near 57th Street and Veterans Parkway, the Harvest Creek development is a mix of commercial and residential development, making it an ideal setting for office users.
“We expect significant interest in these office buildings,” said listing broker Ryan Tysdal of Van Buskirk Cos.
“This is a great opportunity for an owner-occupant, investor or 1031 buyer searching for a property at less than $1 million.”
The 10 free-standing office buildings will be located across the street from Gloria Dei Lutheran Church and Harmodon Park.
“These are attractive buildings,” Tysdal added. “It’s a contemporary style with a variety of high-quality exterior finishes. Plus, there’s access off 57th and Dubuque, which is a full-access intersection”
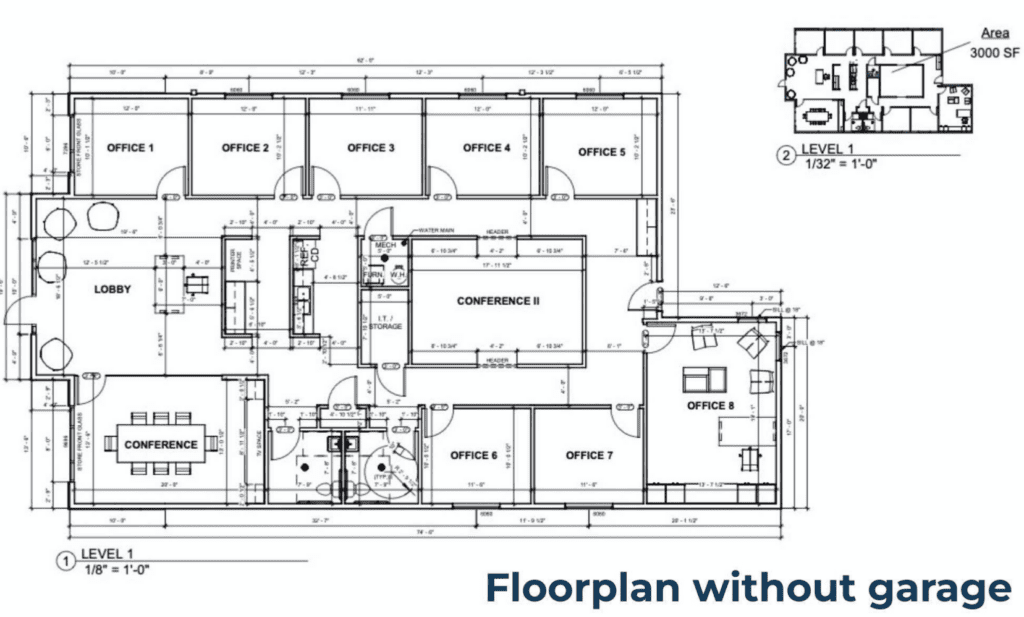
The first floor plan at 3,000 square feet is listed for $925,000.
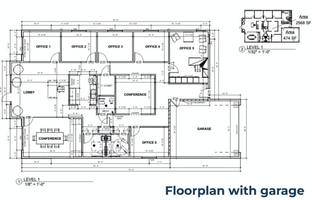
The second floor plan at 3,042 square feet includes a garage and is priced at $910,000.
“These are very functional floor plans. You’ll find six to eight individual offices, multiple conference rooms, lobby and breakroom space, along with IT and mechanical space,” Tysdal said.
“Plus, all of these buildings qualify for a 10 percent down payment using an SBA loan for owner-occupant buyers.”
Construction is scheduled to start yet this year, with delivery in the first half of 2023. Interior construction will be a turnkey delivery.
“This is absolutely an up-and-coming area,” Tysdal said. “You’ll be surrounded by tenants that draw a variety of traffic, from The Barrel House to Truks-N-Trykes child care center, national coffee shops and the future Nyberg’s Ace Hardware. We look forward to seeing this area fill in with office spaces and services that will support this growing part of the city.”
Click here to view the listing online.
To learn more about the Harvest Creek office development, contact Ryan Tysdal at 605-376-0127 or ryan@vbclink.com.
For information on SBA 504 financing opportunities, contact Lynne Keller Forbes at Dakota Business Finance at 605-367-5353.














