Freestanding quick-service restaurant building offered at new price
Aug. 13, 2025
This Site Spotlight is sponsored by Ryan Tysdal, Van Buskirk Cos.
Acquire a freestanding quick-service restaurant building at an outstanding value on a popular east-side corridor.
This 0.77-acre parcel at 3501 E. 10th St. includes a former national coffee restaurant building, with a drive-thru window/lane and outdoor patio.
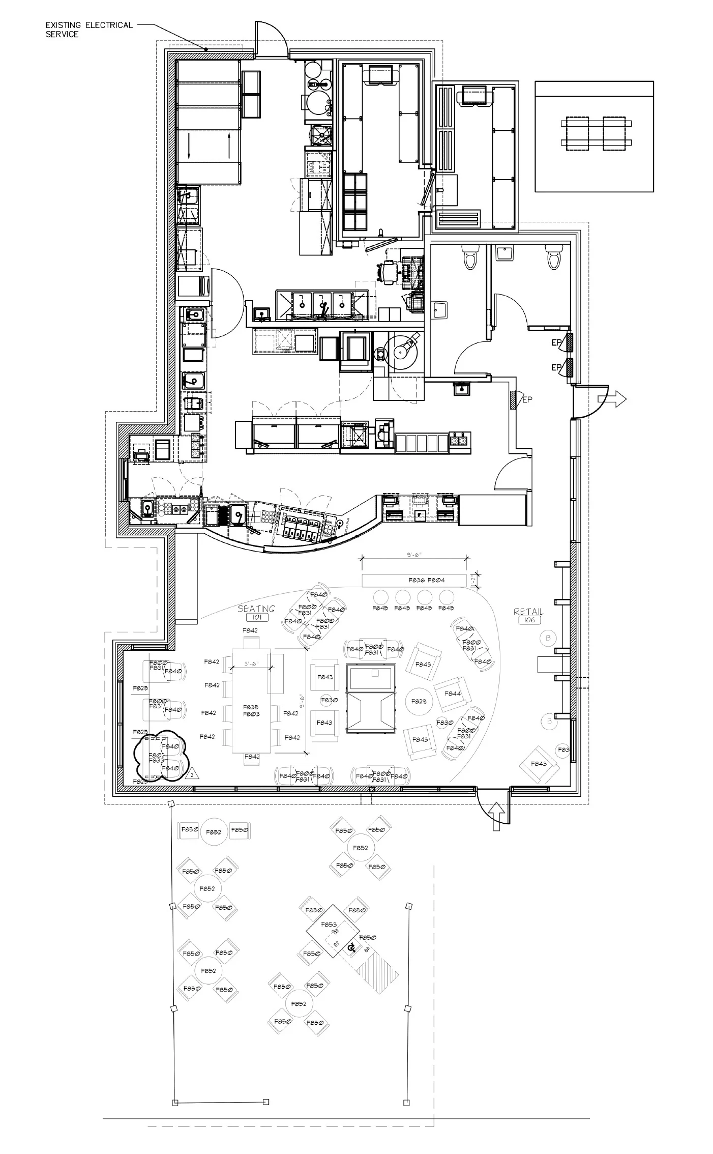
The 2,500-square-foot space includes a dining room, back-of-house kitchen, point-of-sale counter and restrooms.
“This building is turnkey for a new user and being offered at an extremely competitive price,” said Ryan Tysdal, vice president of commercial real estate at Van Buskirk Cos.
“It’s an ideal fit for a quick-service restaurant that wants to do minimal updating and take advantage of a high-profile location. It can also be repurposed for a nonfood general retail user.”
Located near the signalized intersection of 10th Street and Bahnson Avenue, the area sees 22,900 vehicles per day and benefits from strong co-tenants, including Hy-Vee, Dollar Tree, Planet Fitness, Pizza Ranch and Austad’s Golf.
“This is already a popular route with commuters from the growing east side to downtown and beyond,” Tysdal said. “It’s only going to see more activity as Veterans Parkway is completed and the east side continues to mature along with the community of Brandon and the broader metro area.”
The owner is motivated to sell, he added.
“The seller recently slashed the price, which is nearly $400,000 lower than the original asking price last year,” Tysdal said.
Here’s a closer look at the floor plan:
This property is listed at the new price of $1,250,000, and a call for offers is due Sept. 3. For information, contact Ryan Tysdal at 605-376-0127 or ryan@vbclink.com.













